Lyst, lekkert og romslig
Stranda 50
Dette er kompakthytten, som på sine syttifem kvadratmeter, gir deg "Storhyttefølelsen" og plass til hele familien.

En moderne hytte
Minimalt med vedlikehold og skapt for å vare
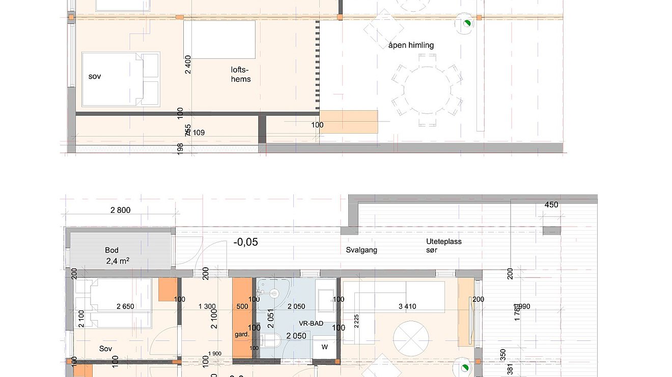
Stranda 50 er tilpasset dagens allsidige hyttebruk og fungerer ypperlig til aktivt fritids- og friluftsliv, late dager med spill og hygge, og også som hjemmekontor for de med mulighet til det. Her har vi vektlagt smarte, fleksible løsninger og store vinduer som tilfører naturlig lys for god romfølelse.
Stranda 50 har tilrettelagt for at du også kan nyte tilværelsen rett utenfor egen hytte, med terrasser og uteplasser rundt hele hytta.



1
2
3
4






